Zahradní doplňky
Zahradní stavby
Dřevostavby
Sauny a vířivky
Prodejny
Vyplňte formulář, kde popište vaši představu a naši specialisté pro vás připraví cenovou nabídku na míru vašim požadavkům.
Objevte luxus a flexibilitu s dřevěnou saunou MODERN KUBE – PROFI s odpočívárnou, která se dokonale přizpůsobí vašim představám. Využijte možnosti výroby na míru z prémiového severského smrku nebo Thermowoodu, s garantovanou dlouhou životností. Užijte si jedinečný komfort díky špičkové izolaci, dálkovému ovládání a snadné údržbě. Tato sauna představuje spojení nejvyšší kvality, inovace a individuálního designu pro váš dokonalý relaxační zážitek.

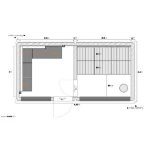
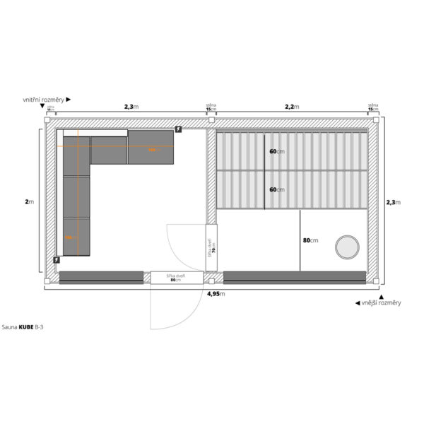
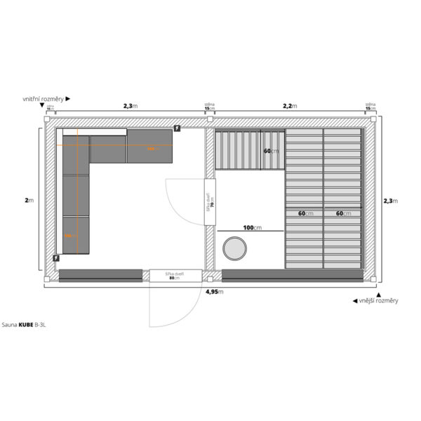
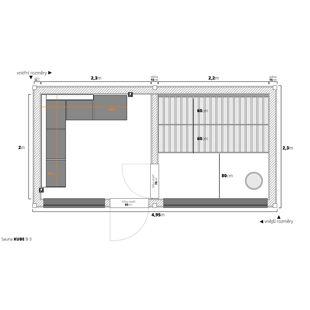
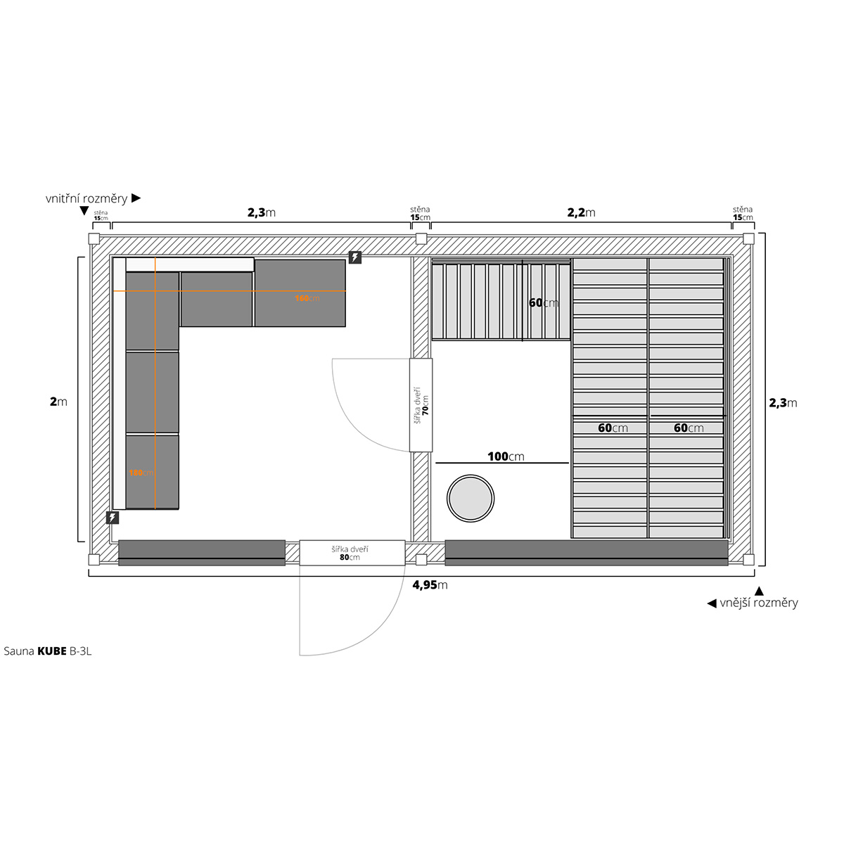
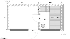
Vstupte do světa nekonečných možností s naší dřevěnou saunou MODERN KUBE – PROFI s odpočívárnou. Jako výrobci vám nabízíme plnou flexibilitu v rozměrech a vybavení, abychom splnili i ty nejnáročnější požadavky. Základní výměra 4,95×2,5m je navržena pro maximální komfort dvou ležících osob (4 sedících osob), ale finální rozměr je vždy na vás.
Naše sauny jsou vyráběny z prvotřídního severského smrku nebo odolného Thermowood dřeva. Smrk s kvalitní ekologickou lazurou zaručuje životnost v desítkách let s minimální údržbou (cca 1x za 3-5 let), zatímco Thermowood® obložení nabízí garantovanou životnost 40+ let i bez údržby. Pro kolekci PROFI je typická izolace v nejvyšší třídě, zajišťující rychlé zatopení a vynikající tepelnou izolaci. Dále nabízíme dálkové WiFi moduly pro spuštění sauny na dálku a lavice s možností snadné demontáže pro jednoduchý úklid. Samozřejmostí jsou speciální elektroinstalace testované do 200 stupňů a kompletní elektro rozvody.
Nabízíme širokou škálu typizovaných variant sauny s odpočívárnou, které se liší rozměry a vnitřním uspořádáním. Pokud však naše typizované varianty neodpovídají vašim představám, můžete si zvolit možnost sauny na míru a vytvořit si tak zcela unikátní prostor.
Naše domy moříme tenkovrstvou vodou ředitelnou lazurou vlastní výroby, která zvýrazňuje kresbu dřeva a je odolná proti povětrnostním vlivům. Na výběr máte z široké palety barev, včetně možnosti barvy na míru.
Zajišťujeme profesionální montáž po celé České republice a Slovensku, s termíny od 45 do 90 dnů od objednání. Dopravu provádíme našimi velkokapacitními vozy, abychom zajistili bezpečnou přepravu i větších dílců pro optimální funkčnost střechy.
| Hmotnost | 550 kg |
|---|







Ovládání funguje prostřednictvím aplikace MyHarvia, která je k dispozici zdarma pro systémy Android (Google Play Store) a iOS (App Store). Usnadní vám zapnutí sauny, takže po příchodu domů nebudete muset zbytečně zhruba hodinu čekat na rozehřátí sauny. Pokud změníte plány, můžete jednoduše saunu mobilem na dálku zase vypnout.
Stáhnout můžete zde: Google Play Store | App Store
SET je vhodný pro saunová kamna a řídící jednotky:

Moderní sauny mohou být ze skla, speciálních saunových desek, z různých druhů kamene, ale nejdůležitějším materiálem zůstává po staletí dřevo. Důvod je jednoduchý: jen dřevěné materiály dokáží sauně poskytnout potřebné vlastnosti a klima. Proto by měla mít dobrá sauna velkou plochu stěn ze dřeva.
Dřevo: aby sauna voněla, byla funkční a krásná
Saunu vnímáme všemi smysly. Oko vidí barvy a tvary. Nosem cítíme vůni dřeva. Holou kůží se dotýkáme příjemně prohřátých a dokonale hladkých ploch. To vše má vliv na to, jak se budeme během saunování cítit a co budeme prožívat.
Borovice či modřín obsahují velké množství smolných pryskyřic, které při vyšších teplotách vytékají ven.
Dub či buk jsou naopak velmi tvrdé, ale mají vysokou tepelnou vodivost a popálily by vám
během saunování pokožku.

Téměř bez sukové, světlé, homogenní dřevo s elegantní jemnou kresbou, které poskytne každé sauně luxusní vzhled. Jedním z nejvýznamnějších důvodů pro jeho použití je jeho přírodní vůně, která se uvolňuje při zahřívání a má relaxační účinky. Má výborné absorpční schopnosti a zůstává příjemně chladné i při vysokých teplotách.

Listnatý strom s velmi nízkou smolnovitostí s krásnou hnědě růžovou barvou. Její letokruhy jsou jen mírně znatelné, dřevo olše je pevné a velmi málo pružné. Bez problémů snáší i vysokou vlhkost, ne nadarmo se z ní v minulosti stavěly mosty.

Speciální kategorií je tzv. Thermo úprava dřeva, která spočívá ve speciální úpravě vypálení, která má za následek stabilnější vlastnosti dřeva, vyšší odolnost proti vlhkosti a barevnou stálost.
Na výrobu našich saun lze také použít materiál Thermowood®, což je tepelně upravená severská borovice, která díky zapečení v sušárně při 200°C získá výrazně lepší vlastnosti než běžné dřevo. Použití severské borovice je také samo o sobě výhodné díky pevnější struktuře pomalu rostoucích severních dřevin.
Extrémní teplota a vlhkost v sauně či páře klade na dveře vysoké nároky. Dveře musí vydržet značné rozdíly teplot a vlhkosti, stříkance od vody, zároveň být bezpečné a neměly by při zahřátí uvolňovat škodlivé látky. Dveře se otevírají i zavírají velmi lehce.

Dveře z tvrzeného skla jsou populární volbou pro dveře do sauny. Tvrzené sklo (tl. min. 8 mm) je silné a odolné vůči teplotním výkyvům, což z něj dělá vhodný materiál pro použití v saunách. Dveře z tvrzeného skla jsou snadno udržovatelné a omyvatelné, což je důležité pro zachování hygieny v sauně. Navíc umožňují průchod světla a vytvářejí příjemnou atmosféru v sauně. Tvrzené sklo také dává dojem prostornějšího prostoru a umožňuje uživatelům vidět do a z sauny, což může být užitečné v případě, že je třeba udržovat oční kontakt s ostatními lidmi v sauně.

Borovicové dveře s úzkým vertikálním oknem uprostřed jsou tradiční a velmi oblíbenou volbou pro finské sauny. Masivní borovicové dřevo (speciálně vybrané a tepelně upravené) výborně izoluje teplo, je přírodní, příjemně voní a dokonale ladí s dřevěným obložením sauny. Úzké bezpečnostní kalené sklo (tl. min. 8 mm) uprostřed dveří propouští dostatek denního světla, vytváří příjemnou atmosféru a zároveň umožňuje bezpečný průhled do sauny i ven – ideální pro udržení očního kontaktu nebo rychlou kontrolu. Dveře jsou vybaveny kvalitním těsněním po obvodu, které minimalizuje únik tepla a páry, a snadno se udržují – stačí občas otřít vlhkým hadrem. Kombinace přírodního dřeva a decentního prosklení dává sauně útulný, prostornější dojem a přitom zachovává klasický saunový charakter.
Při stavbě sauny se často řeší design, topení nebo typ dřeva – ale zapomínat by se rozhodně nemělo ani na ventilaci. Dobře odvětraná sauna není jen otázkou komfortu, ale hlavně správné funkčnosti. Bez čerstvého vzduchu by se sauna rychle změnila v nepříjemně vydýchaný prostor, kde by se vám špatně dýchalo – a o relaxaci by nemohla být řeč.
Správná ventilace má dva zásadní přínosy:
Základní pravidlo je prosté: teplý vzduch stoupá, studený klesá. Vstupní otvor pro vzduch by měl být proto umístěn co nejníže, ideálně za kamny asi 15 cm nad podlahou. Vzduch se u kamen zahřeje, stoupá vzhůru a vytváří podtlak, který nasává nový čerstvý vzduch dovnitř.
Odvodní (odsávací) otvory se pak umisťují:
Pamatujte, že větrací otvory by neměly ústit přímo ven – studený venkovní vzduch může způsobit kondenzaci a zbytečnou vlhkost uvnitř sauny.
Existují v zásadě dva druhy odvětrávacích otvorů. Všechny z nich jsou záměrně po stránce designu řešeny tak, aby zapadly do prostoru sauny a nijak ho nenarušovaly.

Jedná se o kruhový většinou stropní otvor, krytý dřevěným diskem. Tím je možné také otvor v případě potřeby uzavřít.

Klasický ventilační prvek, v sauně se používá často pro přisávací otvory, ale i pro odsávání blízko u stropu. Mřížky jsou vyráběny z různých druhů dřeva, aby tak zapadly do designu sauny.
Mřížky jsou také využívány ve většině případů pro otvor přisávací.
U každé kvalitní sauny je základem správná skladba jednotlivých vrstev, které zajišťují nejen dokonalou izolaci, ale také dlouhou životnost a příjemný zážitek z každého saunování.




Materiály
Z hlediska použitých materiálů je nezbytné rozlišit, jedná-li se o potírnu, odpočívárnu zateplenou, nebo odpočívárnu nezateplenou.
Potírna je tím nejdůležitějším prostorem každé sauny. Právě zde vzniká horký vzduch, teplo se rozlévá do prostoru a dochází k samotnému saunování. Proto klademe velký důraz na precizní provedení všech detailů a použití kvalitních materiálů, které jsou odolné vůči vysokým teplotám, vlhkosti i časovému zatížení.
Podlaha musí být stabilní, bezpečná a zároveň dostatečně izolovaná. Skládá se z několika vrstev:
Pro bezpečnost je pod saunová kamna umístěna nehořlavá podložka třídy A1, která chrání před sálavým teplem i případným žárem.
Stěnová skladba zajišťuje rovnoměrné šíření tepla, zabraňuje tepelným únikům a vytváří příjemné klima:
Pro vnitřní palubky se nejčastěji používá osika, olše nebo tepelně upravené dřevo Thermowood®, které díky své odolnosti zůstává stabilní i při vysokých teplotách.
Teplý vzduch stoupá vzhůru, a proto je izolace stropu klíčová. Používáme stejný princip jako u stěn, ale s větším důrazem na reflexní a těsnicí vlastnosti:
Lavice jsou navrženy tak, aby byly pohodlné, stabilní a zároveň rychle odváděly teplo. Obvykle jsou vyrobeny z olše nebo osiky, protože tyto dřeviny se nezahřívají tak jako smrk a zůstávají příjemné na dotek i při vysoké teplotě.



Zateplená odpočívárna slouží jako přechod mezi potírnou a exteriérem. Je to prostor pro regeneraci, zklidnění a chvíle, kdy si tělo zvyká na běžnou teplotu po intenzivním saunování. Kvalitní zateplení a použití osvědčených materiálů zajišťují, že v odpočívárně je po celý rok příjemné klima, ať už je venku jakkoliv.
Podlaha zateplené odpočívárny je složena stejně jako u potírny z více vrstev, které se starají o pohodlí, stabilitu i tepelnou izolaci:
Pro dosažení tepelně izolačních vlastností srovnatelných s potírnou se i stěny skládají z více vrstev:
Stejně jako u stěn, i strop je navržen pro maximální izolaci a ochranu:

Nezateplená odpočívárna je vhodnou variantou pro letní použití, nebo pokud sauna stojí v mírném klimatu a je chráněna před extrémními teplotami. Je konstrukčně jednodušší, bez izolačních vrstev, ale stále se dbá na pevnost a estetický vzhled.


Výběr vhodných saunových kamen je klíčovým krokem na cestě k dokonalému saunování. Správná kamna totiž určují nejen rychlost nahřátí, ale i intenzitu zážitku, energetickou náročnost a celkový komfort. Ať už stavíte novou saunu, nebo modernizujete stávající, vyplatí se výběru věnovat pozornost.
Než si začnete vybírat konkrétní model, je potřeba znát dva zásadní parametry:
Nejčastější a také nejpohodlnější volbou jsou elektrická saunová kamna. Moderní modely nabízejí jednoduché ovládání, rychlý ohřev a elegantní design. Díky integrované nebo externí řídicí jednotce si nastavíte přesnou teplotu i dobu provozu – stačí otočit knoflíkem nebo kliknout v mobilní aplikaci.
Mezi nejlépe hodnocené značky patří Harvia, legendární finský výrobce, který kombinuje špičkové technologie s tradičními saunovými hodnotami. Jejich kamna jsou navržena pro dlouhou životnost, nízkou spotřebu a maximální zážitek z každého saunování.
Pokud hledáte autentický saunový rituál s praskáním dřeva a mihotavým světlem plamene, pak sáhněte po kamnech na dřevo. Jsou ideální pro venkovní sauny, kde není dostupný elektrický proud, a ocení je všichni, kdo dávají přednost tradičnímu přístupu bez kompromisů.

Pokud hledáte výkonná a přitom uživatelsky přívětivá elektrická kamna do sauny, model Harvia Vega BC80 je skvělým řešením. Díky výkonu 8 kW jsou tato kamna ideální pro sauny o velikosti 7 až 12 m³ a dokážou prostor rovnoměrně a rychle vyhřát.
Tělo kamen je vyrobeno z nerezové oceli, což zaručuje dlouhou životnost, odolnost vůči vlhkosti i elegantní vzhled. Praktickou výhodou je integrovaná regulační jednotka přímo na plášti, která umožňuje nastavení požadované teploty, délky provozu a času sepnutí. To vše jednoduše a intuitivně bez potřeby externího ovladače.
Součástí balení je montážní plech pro upevnění na stěnu i veškerý instalační materiál, takže kamna snadno a rychle zapojíte. Harvia Vega BC80 jsou také plně přizpůsobena pro tradiční saunovací rituál s poléváním kamenů vodou, díky čemuž si užijete autentický zážitek s bohatou párou.
Technické parametry:
Harvia Vega Pro BC165 představuje výkonná a elegantní elektrická saunová kamna určená pro větší domácí i komerční sauny. S výkonem 16,5 kW snadno vyhřejí prostory o objemu až 24 m³, a to rovnoměrně i v nižších partiích sauny – díky možnosti instalace nízko nad podlahou.
Plášť kamen je vyroben z odolné nerezové oceli, která se skvěle hodí do náročného saunového prostředí a zároveň dodává kamenům moderní vzhled. Kamna jsou navržena pro polévání vodou, což umožňuje intenzivní parní zážitky při každém saunování.
Vega Pro BC165 nemají vlastní ovládací jednotku, a proto je potřeba dokoupit externí regulaci. Tato variabilita ale přináší výhodu – můžete si vybrat přesně takový ovládací systém, jaký nejlépe odpovídá provozu a náročnosti vaší sauny.
Technické informace:


Harvia The Wall E jsou moderní elektrická kamna, která spojují minimalistický design s osvědčenou finskou kvalitou. Díky výkonu 4,5 kW jsou ideální volbou pro menší domácí sauny o velikosti 3 až 6 m³, kde poskytnou rychlé a rovnoměrné vyhřátí prostoru.
Design kamen zaujme elegantním černým provedením a kompaktním tvarem, který šetří místo. Integrované podsvícené ovládání na těle kamen umožňuje jednoduché nastavení času, teploty i doby provozu – pohodlně, bez nutnosti dalších zařízení.
Unikátní konstrukce topných spirál je navržena tak, aby byla odolná vůči deformaci a zajistila dlouhou životnost i při pravidelném používání. Spodní část kamen je navíc speciálně chráněna proti vlhkosti a teplu, což přispívá ke spolehlivosti a bezpečnému provozu.
Technické informace:
Saunová kamna Harvia Cilindro PC70E jsou skvělou volbou pro všechny, kdo hledají silný výkon, moderní vzhled a možnost častého polévání vodou. Díky své vysoké válcové konstrukci se hodí i do menších saun, kde dokážou rovnoměrně rozložit teplo a vytvořit příjemné, vlhké klima. V jejich robustním těle je místo až pro 90 kg lávových kamenů, což umožňuje delší intervaly mezi jednotlivými poléváními a zároveň flexibilní regulaci intenzity saunování – podle toho, kterou část kamen poléváte.
Kamna jsou vyrobena výhradně z nerezové oceli, což zajišťuje dlouhou životnost, vysokou odolnost vůči vlhkosti i elegantní vzhled. Neobsahují integrovanou regulaci, a proto je nutné je doplnit externí řídicí jednotkou, což vám ale zároveň dává větší kontrolu nad jejich funkcemi.
Pokud chcete sauně dodat exkluzivní vizuální prvek, lze tato kamna elegantně zabudovat přímo do lavice pomocí volitelného nerezového límce HPC1 – vznikne tak designový detail, který posune atmosféru vaší sauny na zcela novou úroveň.


Elektrická saunová kamna Harvia Cilindro PC90 s výkonem 9 kW patří mezi špičku pro ty, kteří milují intenzivní a autentické saunování. Díky své vysoké, válcovité konstrukci a možnosti umístění až 90 kg lávových kamenů zajišťují rovnoměrné sálání tepla i dlouhé intervaly mezi poléváním.
Regulaci mají pohodlně umístěnou na plášti kamen, takže je ovládání velmi snadné. Tvar kamen zároveň umožňuje precizně řídit intenzitu páry – poléváním horní části vzniká rychlé a prudké odpařování, zatímco spodní části zajišťují jemnější nástup tepla. Tato možnost ovlivňovat saunovací zážitek je to, co činí Cilindro PC90 výjimečnými.
Doporučený objem sauny je mezi 8 až 14 m³, což z nich dělá ideální volbu pro většinu domácích i menších komerčních saun. Elegantní design z nerezové oceli přidává každé sauně moderní a luxusní vzhled. Kamna navíc podporují polévání vodou, což výrazně zvyšuje komfort saunování.
Pokud hledáte kamna, která v sobě spojují sílu, design a mimořádný komfort, pak je Harvia Cilindro PC110E tou správnou volbou. S výkonem 10,8 kW jsou jako stvořená pro střední a větší sauny o velikosti 9 až 18 m³.


Elektrická saunová kamna Harvia Spirit SP90XW o výkonu 9 kW patří mezi nejmodernější a nejchytřejší řešení na trhu. Vyvinutá a vyrobená ve Finsku, zemi s nejdelší saunovací tradicí, přinášejí dokonalou rovnováhu mezi výkonem, bezpečností, stylem a komfortem ovládání.
Moderní elektrická kamna Harvia Spirit SP60E s výkonem 6 kW jsou ideálním řešením pro menší sauny o velikosti 5 až 8 m³. Navržená a vyrobená ve Finsku, v zemi, kde má saunování hlubokou tradici, spojují technologickou vyspělost s elegantním designem a maximálním komfortem.
Technické parametry


Toužíte po sauně, která nabízí víc než jen suché teplo? S elektrickými kamny Harvia Virta Combi HL70S si dopřejete rozmanité saunovací zážitky – od tradiční finské sauny až po jemnou parní nebo aromaterapeutickou variantu.
S výkonem 7 kW jsou ideální volbou pro domácí i poloprofesionální sauny, především pro uživatele, kteří si chtějí vychutnat saunování v celé jeho šíři a variabilitě.
Technické parametry

Toužíte po sauně, která nabízí víc než jen suché teplo? S elektrickými kamny Harvia Virta Combi HL70S si dopřejete rozmanité saunovací zážitky – od tradiční finské sauny až po jemnou parní nebo aromaterapeutickou variantu.
S výkonem 7 kW jsou ideální volbou pro domácí i poloprofesionální sauny, především pro uživatele, kteří si chtějí vychutnat saunování v celé jeho šíři a variabilitě.
Technické parametry
Na rozdíl od elektrických kamen vyžadují ty na dřevo více prostoru, především pro bezpečný odstup od hořlavých materiálů a dostatek místa pro manipulaci s palivem. Údržba je sice o něco náročnější – počítat musíte s pravidelným odstraňováním popela a pečlivým větráním – ale ten výsledek za to opravdu stojí.
Pokud si chcete užívat pravou finskou saunu, neplánujete kompromisy a milujete přirozené živly, kamna na dřevo jsou ideální volbou. Jsou perfektní zejména pro venkovní sauny, protože nevyžadují přívod elektřiny – postačí komín a suché dřevo. Navíc právě dřevem vytápěná sauna se nahřeje rychleji. Díky chytré konstrukci a promyšlené cirkulaci vzduchu dokáže například finská značka Harvia zajistit rovnoměrné, rychlé a efektivní prohřátí celého prostoru s minimální spotřebou paliva.
Kvalitní dřevěná kamna se vyznačují velmi dlouhou životností. Při správném zacházení, pravidelné údržbě a používání suchého dřeva vám budou sloužit po desítky let. Jsou vyrobena z odolných materiálů, které bez problémů zvládají vysoké teploty, vlhkost i každodenní provoz.
Kamna na dřevo přirozeně zapadnou do rustikální i moderní sauny. Skleněná dvířka umožní pohled do hořícího ohně, čímž vnesou do interiéru romantickou atmosféru a jemné světlo, které neruší, ale naopak podporuje relaxaci. Tato vizuální stránka dělá z kamen nejen topné těleso, ale designový i emoční prvek vaší sauny.

Kamna Harvia Linear 16 představují spojení tradičního saunového zážitku s moderním designem a vysokým výkonem. S výkonem 17,9 kW spolehlivě vyhřejí menší i středně velké sauny o objemu 6 až 16 m³, a to rychle a efektivně.
Na první pohled zaujmou grafitově černým povrchem, který působí elegantně a stylově v jakémkoli interiéru. Design je čistý, s důrazem na ostré linie a minimalistické zpracování, které zapadne do moderních i klasických saun.
Velkou předností těchto kamen jsou skleněná dvířka s ocelovým rámem, která umožňují pohled na živý oheň. Plameny vytvářejí hřejivou, uklidňující atmosféru a světelný efekt, který během saunování umocní pocit klidu a souznění s přírodou.
Harvia Linear 16 je větší a výkonnější verzí osvědčeného modelu Harvia M3, přičemž nabízí větší kapacitu pro saunové kameny a tím pádem i větší tepelnou setrvačnost a možnost intenzivnějšího zážitku z polévání.
Kamna jsou vyrobena z kvalitních, vysoce odolných materiálů, které odolají extrémním teplotám i vlhkosti. Díky důmyslnému řešení proudění vzduchu navíc zajistí rovnoměrné prohřátí celé sauny, a to s nižší spotřebou dřeva.
Harvia M3 patří mezi nejpopulárnější kamna na dřevo určená pro menší sauny o objemu 6 až 13 m³. Jejich výkon 16,5 kW zaručuje rychlé a rovnoměrné vyhřátí prostoru, a to s minimálními nároky na obsluhu.
Kamna na první pohled zaujmou tradičním vzhledem s moderními prvky. Povrch v elegantní černé grafitové barvě kontrastuje s nerezovými prvky, které doplňují čelní část i ventilační otvory. Tento decentní design se hodí do jakéhokoliv saunového interiéru – od rustikálních až po moderní kabiny.
Jedním z klíčových prvků je skleněné dvířko, které umožňuje sledovat plameny během saunování. Měkké světlo ohně v potemnělém prostoru sauny vytváří neopakovatelnou atmosféru, která umocní tvůj zážitek z relaxace a klidu.
Kamna jsou konstruována tak, aby byla praktická a odolná – s dlouhou životností při minimální údržbě. Tělo kamen je navrženo s důrazem na efektivní proudění vzduchu, což zajišťuje rychlejší vyhřátí a úsporu paliva.
Harvia M3 je skvělou volbou pro každého, kdo chce autentický saunovací zážitek s nádechem finské tradice, a přitom bez složité instalace nebo zbytečných kompromisů.


Model Harvia 20 SL představuje ideální řešení pro ty, kteří chtějí dopřát své sauně autentické teplo z ohně, ale zároveň upřednostňují pohodlnou obsluhu z jiné místnosti. Díky prodlouženému topeništi lze kamna roztápět mimo samotnou saunu – například z předsíně nebo technické místnosti – čímž se vyhnete zanášení prostoru popelem a dřevem.
Design kamen je elegantní a praktický zároveň. Povrch v odstínu černého grafitu působí decentně a luxusně, zatímco prosklená dvířka umožňují pozorovat hru plamenů. Měkké světlo ohně vytváří během saunování uklidňující atmosféru, kterou žádné elektrické topidlo nenahradí.
Díky nastavitelným nožičkám lze kamna snadno a přesně usadit i na nerovném povrchu. Navíc je možné změnit směr otevírání dvířek, což zajišťuje maximální komfort při každodenním používání.
Kamna Harvia 20 SL lze také připojit k externímu bojleru, takže zároveň se saunováním lze ohřívat vodu – ideální pro chaty či saunové domky bez napojení na klasický ohřev.
Díky vysokému výkonu až 24,1 kW (v některých variantách) jsou tato kamna doporučována pro středně velké sauny o objemu 8–20 m³, kde zajistí rychlé a rovnoměrné vyhřátí prostoru.
Harvia Legend 240 nejsou jen kamna – jsou srdcem sauny, které propojuje sílu tradičního topení dřevem s moderním technickým zpracováním a stylovým designem.
Díky inovativní konstrukci roštu spalují dřevo efektivněji a čistěji, což znamená rychlejší vyhřátí a menší spotřebu paliva. Tento systém také snižuje množství zbytkového popela, čímž usnadňuje údržbu.
Oproti běžným modelům mají kamna zmenšené bezpečnostní vzdálenosti, což vám poskytuje větší volnost při navrhování interiéru sauny – lavice i stěny můžete umístit blíže, a tak lépe využít prostor.
Design kamen Legend je robustní, stylový a nadčasový. Velká skleněná dvířka v čelní části zajišťují krásný pohled na plápolající oheň, který zútulní každou saunu a vytvoří nezaměnitelnou atmosféru tradičního saunování. Ocelový rám dvířek navíc podtrhuje odolnost celého zařízení.
Polohovatelné nožičky umožňují snadné usazení kamen i na nerovných podlahách – praktické řešení pro každou stavbu. S výkonem 21 kW jsou Harvia Legend 240 určena pro sauny o velikosti 10–24 m³, a tedy i pro náročnější uživatele, kteří očekávají rychlý náběh teploty a stabilní výkon i při častém používání.


Správný výběr podkladu je klíčový pro dlouhou životnost a stabilitu celé stavby. Před samotnou instalací je nutné zajistit pevný, vyrovnaný a ideálně i vodopropustný podklad. Níže uvádíme přehled možných variant včetně výhod a doporučení:
Správná příprava podkladu je zásadní pro dlouhou životnost a bezproblémový provoz sauny či vířivky. Štěrkové lože je jednou z nejefektivnějších, cenově dostupných a přitom velmi odolných variant, která zajišťuje stabilní a dobře odvodněný základ.
Než začne samotná realizace, je důležité přesně určit velikost stavby – tedy rozměry vířivky nebo sauny. Rozměr štěrkového lože by měl přesahovat půdorys stavby alespoň o 10–15 cm na každou stranu. Tento přesah slouží nejen k lepšímu odvodu vody a zabránění prorůstání trávy až pod konstrukci, ale také přispívá ke snadnějšímu sekání trávy v jejím okolí a dotváří estetický vzhled celého prostoru.
Pro vymezení plochy se doporučuje použít kolíky a provázek, díky kterým přesně označíte okraje. V této fázi můžete zvážit i budoucí instalaci obrubníků – plastových, betonových nebo žulových –, které pomohou udržet štěrk na svém místě a zvýší stabilitu okrajů.


Po vytyčení prostoru následuje odstranění vegetace a horní vrstvy zeminy. Výkop by měl být hluboký 25 až 31 cm, podle typu půdy – měkké a jílovité podloží si často vyžaduje hlubší výkop, zatímco tvrdé a kamenité podloží postačí mělčí.
Zhutnění dna výkopu je klíčové. Provede se pomocí vibrační desky, která zeminu utěsní, odstraní vzduchové kapsy a zabrání budoucímu propadávání podkladu. Při zhutňování dbejte na rovnost a rovnoměrnost celého dna výkopu – dobrý základ je základem všeho.
Na zhutněné dno se pokládá geotextilie, která plní několik důležitých funkcí:
Geotextilie by měla přesahovat okraje výkopu, a případné překrytí jednotlivých pásů provádějte s přesahem alespoň 10 cm.
Na připravenou plochu začněte navážet štěrk ve vrstvách:
Závěrečné srovnání do roviny pomocí latě nebo rovného prkna zajistí, že podklad bude připraven na rovnoměrné rozložení hmotnosti vířivky nebo sauny bez rizika deformace.



Pro udržení tvaru štěrkového lože a čistý estetický dojem je vhodné lože ohraničit obrubníky. Vhodné jsou betonové obrubníky usazené do betonového lože, neviditelné plastové obrubníky nebo například lem z kamenných kostek.
Postup:
Tento způsob přípravy podkladu je ideální pro všechny, kteří hledají stabilní, funkční a přitom estetické řešení bez nutnosti budování nákladné betonové desky. Kvalitně připravené štěrkové lože je pro saunu či vířivku nejen praktické, ale také plně postačující z hlediska pevnosti a dlouhodobé životnosti.
Použití betonových dlaždic jako podkladu pro saunu nebo vířivku představuje praktické a cenově dostupné řešení, které nabízí velmi dobrý poměr mezi jednoduchostí instalace a dlouhodobou stabilitou. Klíčovým předpokladem však je, aby byla příprava provedena pečlivě a přesně.
Zodpovědnost za přípravu podkladu - příprava a pokládka betonových dlaždic je vždy v odpovědnosti investora (zákazníka). Je tedy nezbytné zajistit potřebné množství dlaždic s dostatečným předstihem před samotnou instalací vířivky či sauny.
Doporučené rozměry a typ dlaždic - pro většinu menších a středně velkých realizací doporučujeme použít betonové dlaždice o rozměru:
Důležité je zvolit dlaždice s dostatečnou nosností a pevností – ideálně beton třídy C25/30 nebo vyšší.
Tato metoda přípravy podkladu je ideální pro rychlou a přitom pevnou instalaci vířivek a saunových kabin v exteriéru bez nutnosti budování betonových desek nebo náročných zemních prací. Správně položené dlaždice zajistí rovnoměrné rozložení hmotnosti a dlouhou životnost celé stavby.

Instalace sauny vyžaduje důsledné dodržení bezpečnostních pravidel a technických norem. Níže uvádíme klíčové zásady, které je nutné respektovat při návrhu, výrobě i instalaci sauny.
Veškeré provedení sauny musí odpovídat následujícím pořadím závazných dokumentů (v sestupné důležitosti):
V případě nejasností nebo nesouladu mezi jednotlivými normami je povinností výrobce konzultovat záležitost se zákazníkem. Stejné pravidlo platí i při chybějících specifikacích ohledně montáže.
Každá sauna musí mít zajištěné přirozené odvětrávání (samotížné proudění), není-li uvedeno jinak. Správné rozmístění větracích otvorů je klíčové:
Tento systém zajišťuje kvalitní cirkulaci vzduchu, rovnoměrné prohřátí prostoru a přívod čerstvého vzduchu během saunování.
Podlahová konstrukce sauny je obvykle dřevěná, a proto je nutné ji chránit nehořlavým materiálem třídy A1. Rozměry této ochrany se musí rovnat ploše topného tělesa včetně ochranného pásma, jehož konkrétní velikost se liší podle typu kamen a je specifikována výrobcem.
U kamen na dřevo je nutné přidat navíc originální ochrannou podložku, která zvyšuje bezpečnost a tepelnou izolaci.
V případě použití kamen na dřevo je třeba zajistit:
Každé topné těleso musí být umístěno tak, aby byly dodrženy minimální bezpečné vzdálenosti:
U komínových průchodů u kamen na dřevo je nutné vždy využít speciální protipožární prostupové prvky pro stěnu i strop.
Veškerá elektroinstalace v sauně musí odpovídat platným českým normám:
Veškeré lavice, opěrky a další vybavení musí být:
To zajistí jak hygienický provoz, tak usnadní případný servis.
Po dokončení instalace je třeba zajistit:
Bez řádné revize není možné saunu bezpečně a legálně provozovat.
Sníte o vlastní sauně, krásné pergole nebo útulném zahradním domku? My ti pomůžeme to proměnit ve skutečnost – a ještě k tomu ZDARMA.
Při každé objednávce dřevěného domku, sauny, pergoly, altánu nebo chatky → dostanete od nás profesionální 3D projekt zdarma!
Přesně uvidíte: