Zahradní doplňky
Zahradní stavby
Dřevostavby
Sauny a vířivky
Prodejny
Jedná se o dřevostavbu, která je vhodná jako chata nebo prázdninový dům. Dům Stodola vyrábíme ze smrkového a borovicového dřeva.
Z našich realizací víme, co takový dům musí mít, jak má být správně vyroben a rádi se o naše získané zkušenosti s vámi podělíme. Dům jsme zkrátka pro vás vyladili do posledního detailu.
Uvedená cena je za základní provedení. Příplatkově nabízíme zateplení, elektro instalaci, topení, vystavění komínu, stavbu základové desky, různé typy střešních krytin a vůbec celou realizaci na klíč. Všechny běžné doplatky a varianty se dozvíte přesně v našem naceňováním robotu níže. Myslíme na vaše pohodlí a tak si můžete u nás také pořídit nábytek a 3D vizualizaci celého projektu. Pro více informací nás kontaktujte a my vám spočteme vše potřebné na míru a navrhneme pro vás ideální řešení. Telefonní kontakt je +420 608 771 117 , či email: fila@na-statku.cz. Rádi s vámi probereme všechny detaily, možnosti a nezávazně Vám spočteme celou stavbu. Naše domky je možné umístit na betonovou základovou desku, ale také pouze na betonové dlaždice, což celou stavbu výrazně zlevní a zrychlí.
Při umístění domu můžete využít nově schválené legislativy, která se zabývá stavbami do 40m2. Dle této novely zákona spadají domky do 40m2 do tzv. drobných staveb. Tyto stavby nevyžadují již stavební povolení, ani kolaudaci.
Naše stavba je difuzně otevřená, což znamená, že umožňuje přirozené „dýchání“ – vodní pára může volně procházet konstrukcí směrem ven. Díky tomu je v domě zdravé klima bez zadržované vlhkosti a rizika plísní. Je to přirozený a ekologický způsob stavění s důrazem na pohodlí a dlouhou životnost.
Součástí ceny je také 3D projekt ZDARMA. V rámci ceny nabízíme možnost jakýchkoli změn v obložení, umístění dveří a poměru Thermowood/plech na klik dle Vašeho návrhu. V ceně jsou rovněž úpravy vnitřního uspořádání podle Vašich požadavků.
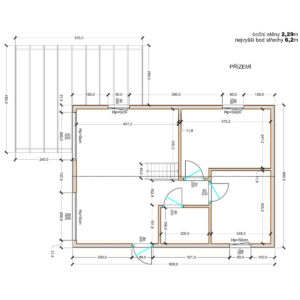
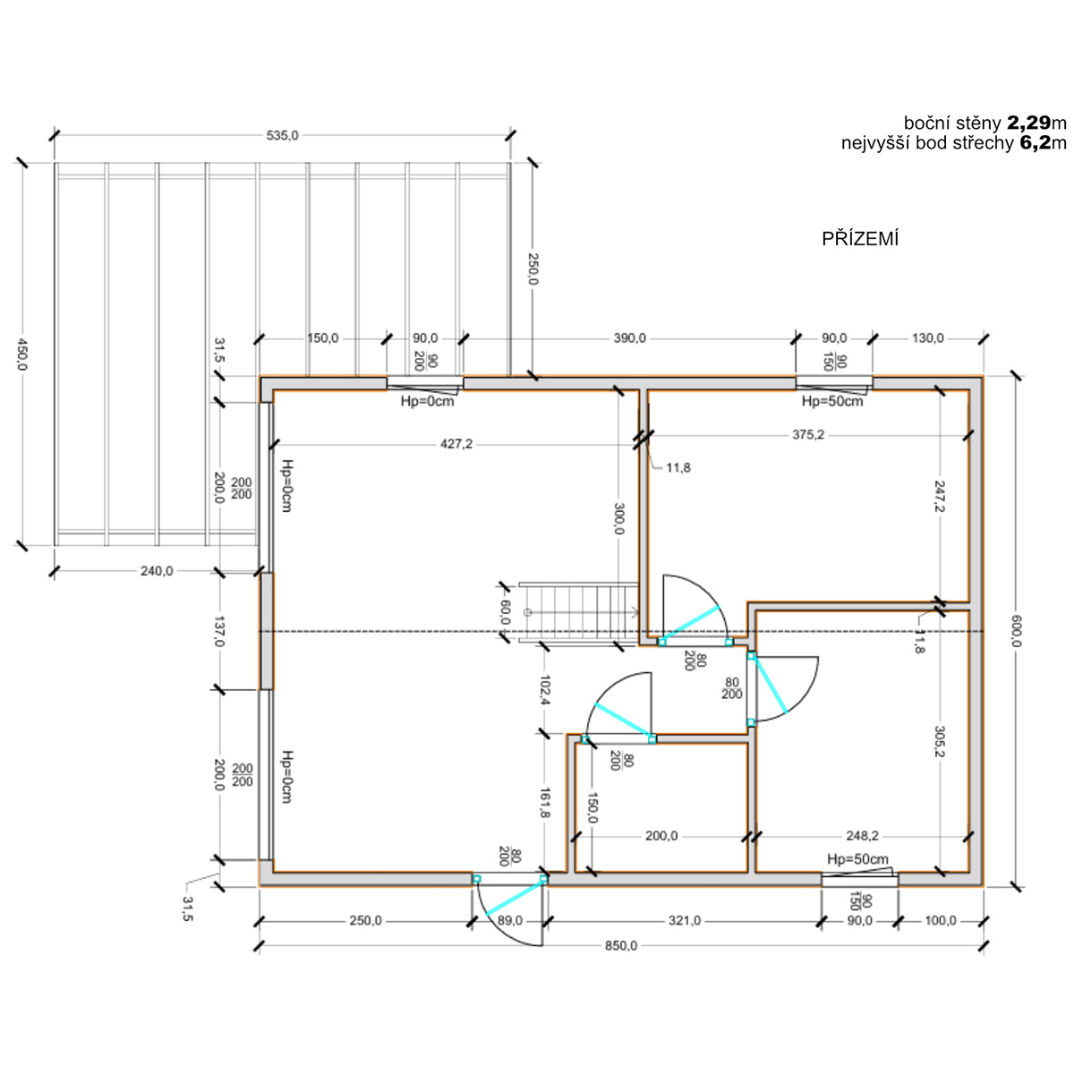
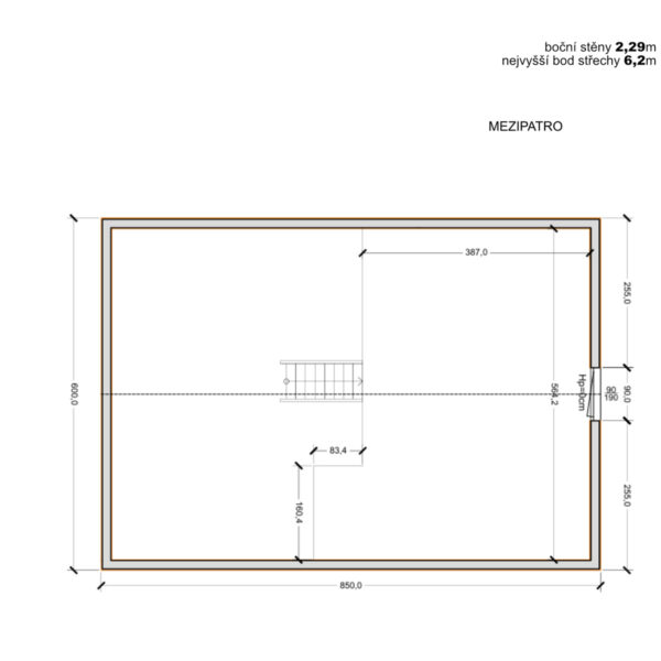
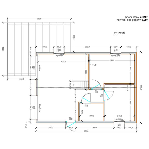
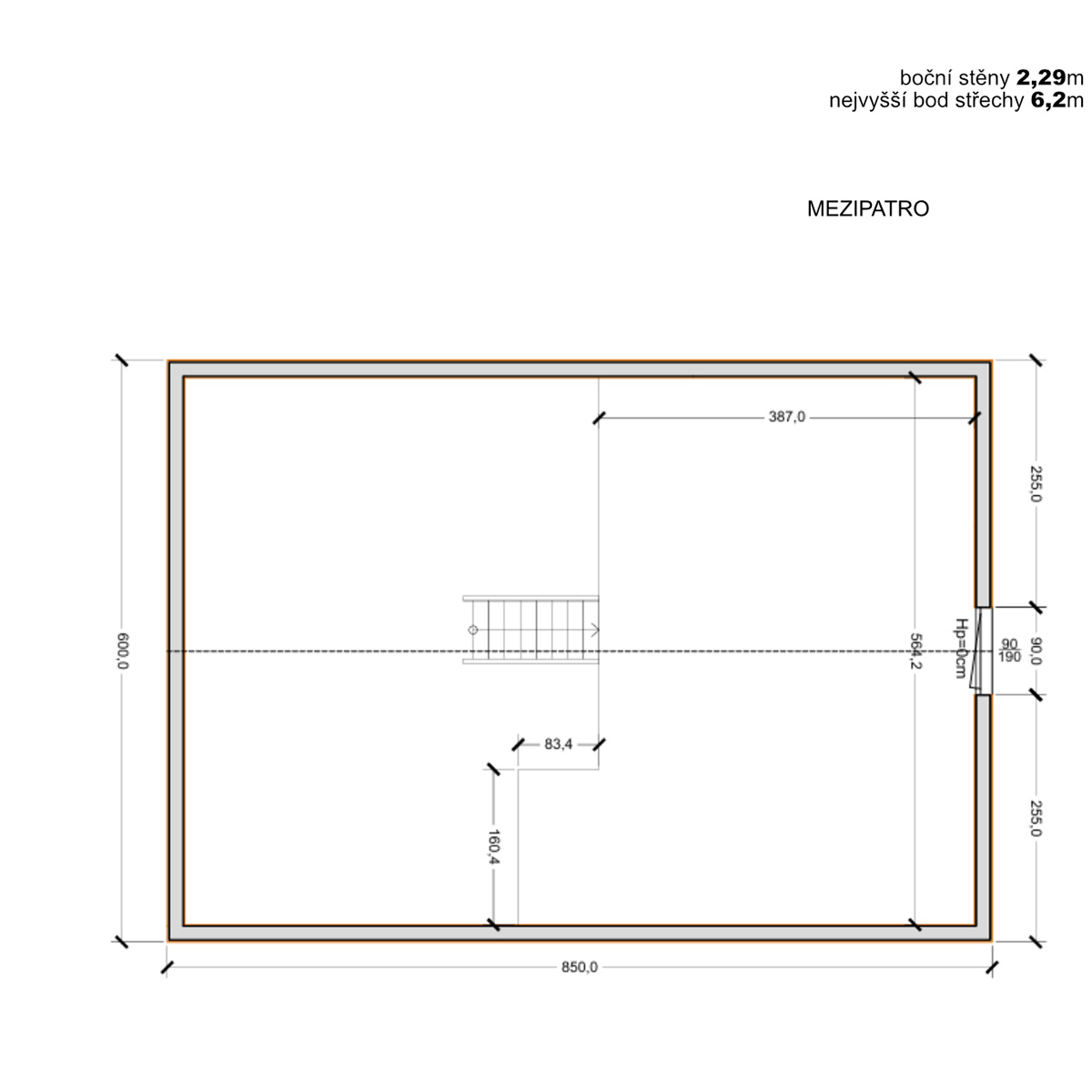
Pro představu se můžete podívat na ukázku 3D návrhu, půdorysného řešení a technické dokumentace:
• Technická dokumentace STODOLA B2 | Stolárna na statku s.r.o.
• 3D vizualizace STODOLA B2 | Stolárna na statku s.r.o.
Doba dodání u všech typů domků je 2 měsíce od schválení finálního projektu.

| Hmotnost | 5500 kg |
|---|
