Popis
ZÁKLADNÍ INFORMACE
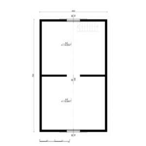
Základní rozměry:
4,5x 5,5m plus 2m terasa , zastavěná plocha 33.75m2, podlahová plocha 50,29m2, tloušťka desek 21mm, úhel střechy48°, výška stěn 2,2m, výška v kohoutku 5,2m. Součástí domu jsou 1 dveře venkovní 80x200cm a 5 oken s okenicemi 90×70.
Varianty:
A/4,5×5,5m plus 2m terasa B/ 4,5×6 plus 2m terasa C/ 5x6m plus 2m terasa D/ 5×7 plus 2m terasa



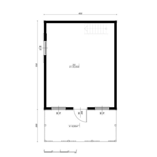
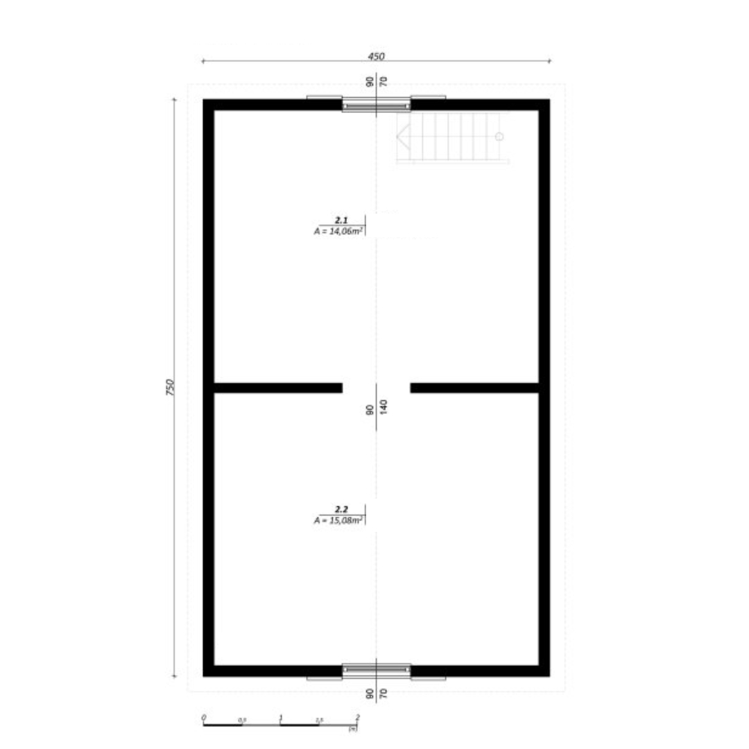
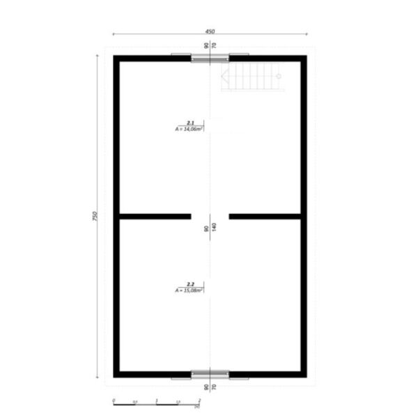
VNITŘNÍ DISPOZICE
Vnitřní dispozice, rozdělení místností i jejich velikost nebo počet lze upravit podle Vašich přání – například přidat novou místnost nebo změnit účel prostor. U každého domu máme připravenou standardní dispozici pro inspiraci, ale na přání Vám rádi ukážeme i jiné již realizované varianty. Prvním krokem je jednoduchý náčrt Vaší představy, třeba jen na čtverečkovaném papíře, který následně převedeme do přesného půdorysu v měřítku. Tento návrh vytváříme zcela zdarma ještě před samotným naceněním domu. Standardní doba dodání půdorysu je 24 až 48 hodin.


SCHÉMA KONSTRUKCE
Naše dřevostavby využívají difuzně otevřenou konstrukci, která je vyplněna foukanou izolací Thermofloc® – ekologickým a vysoce efektivním materiálem s jednoduchou aplikací, kterou zvládne každý bez rizika chyb. Thermofloc® se nedegraduje, neusazuje a výborně pracuje s vlhkostí, což zaručuje dlouhodobou kvalitu bez nutnosti údržby. U celoročních variant domů standardně používáme protipožární červený sádrokarton o tloušťce 15 mm. Díky moderním technologiím vnitřních difuzních a paropropustných fólií značky Thermofloc® dosahují naše domy velmi nízké tepelné ztráty okolo 5 kW.

Průběh zakázky
Prvním krokem v celém procesu je výběr typu domu a jeho vnější dispozice. Na základě této volby a plánovaného vybavení si můžete svůj dům nacenit do posledního detailu přímo na našich stránkách, kde je celý postup srozumitelně vysvětlen. Pokud dáváte přednost osobnímu přístupu, můžete nám jednoduše předat základní informace a my Vám připravíme nacenění sami. Pro přesnější kalkulaci je vhodné dodat i jednoduchý plánek vnitřního rozvržení, kde budou vyznačeny například dveře a okna. Pokud se na této cenové nabídce shodneme a rozhodnete se svěřit realizaci domu nám, podepisujeme buď variantu A – smlouvu o projektové dokumentaci, nebo variantu B – zálohu na stavbu domu ve výši 40 % z celkové ceny. Varianta B je rychlejší, protože nám umožní okamžitě nakoupit materiál, rezervovat kapacitu výroby a zkrátit tak celkovou dobu výstavby až o 30–60 dní. Pokud zvolíte variantu A, uhradíte plnou cenu projektu ve výši 150 000 Kč. V případě následné realizace zakázky Vám tuto částku odečteme a získáte zvýhodněnou cenu za kompletní projekt (ALL.IN) – v závislosti na typu domu může být snížena na 20–70 000 Kč.
Po uhrazení jakékoli z těchto plateb následuje vytvoření 3D návrhu Vašeho domu. S ohledem na Vaše připomínky tento proces obvykle trvá 7–14 dní, přičemž naše reakce na každou úpravu zasíláme standardně do 24–48 hodin. Po finálním odsouhlasení 3D návrhu připravíme projekty elektroinstalace, vody, osvětlení a odpadu ve standardní kvalitě a zašleme Vám je ke kontrole. Jakmile vše potvrdíte, zahajujeme proces stavebního řízení, jehož konkrétní průběh závisí na typu stavby (odkaz doplníme).Po získání stavebního povolení nebo předběžného souhlasu a uhrazení další zálohy ve výši 33 % se pouštíme do výroby Vašeho domu. Ta obvykle trvá přibližně 30 dnů. Pokud jsou současně připraveny i všechny podmínky na pozemku – základová deska, napojení na sítě, průzkumy a souhlasy – zahajujeme samotnou stavbu dle domluveného harmonogramu. Výstavba na místě trvá běžně 20–30 dní, dle rozsahu doplňkových služeb (topení, podlahové krytiny, nábytek apod.) se může prodloužit o dalších 15–30 dní.
Další platba ve výši 15 % z ceny domu probíhá ve fázi dokončování hrubé stavby. Zbytek ceny je splatný po kolaudaci nebo při předání domu.

Stavební povolení a ohlášení stavby
Ke každému našemu domu nabízíme možnost kompletního zajištění stavebního povolení nebo ohlášení stavby. Pokud si přejete řešit stavební řízení sami, dodáme Vám pouze kompletní projektovou dokumentaci v potřebném rozsahu. Na začátku je důležité si ujasnit, o jaký typ stavby se jedná – zda jde o rodinný dům určený k celoročnímu bydlení, rekreační objekt nebo například drobnou stavbu navazující na stávající objekt. Podle této volby se pak liší konkrétní postup vůči stavebnímu úřadu.
Proces získání stavebního povolení zpravidla trvá 30 až 90 dnů, ale vzhledem ke složitosti stavebního práva a rozdílné praxi jednotlivých úřadů je třeba počítat i s možnými zdrženími. Ze zkušenosti víme, že vstřícný a osobní přístup k pracovníkům stavebního úřadu může celý proces výrazně urychlit.
Podrobný popis jednotlivých kroků, požadavků na investora a celý průběh stavebního řízení najdete v tomto odkazu: Stavební povolení | Stolárna na statku s.r.o.

SPOLUPRÁCE, DODAVATELÉ a LOGIKA VÝSTAVBY
Stavíme domy – to je naše hlavní specializace a obor, ve kterém se neustále zdokonalujeme. Sledujeme nejnovější trendy, účastníme se školení a vylepšujeme každý detail, abychom Vám mohli nabídnout kvalitní, moderní a spolehlivé řešení. Naší ambicí je dodávat domy na klíč a zbavit Vás zbytečných starostí s dalšími stavebními profesemi. Proto spolupracujeme výhradně s ověřenými specialisty a firmami, které patří ke špičce v oboru.
Na izolace a parobrzdné fólie využíváme systém Thermofloc®, podlahové vytápění s doživotní zárukou zajišťuje Saint-Gobain, klimatizace instalujeme převážně značek LG a Samsung, koupelny dodává PTÁČEK a podlahové krytiny řešíme s firmou V-Podlahy. Používáme ověřené materiály značek RIGIPS a ISOVER a spolupracujeme výhradně s českými firmami nebo českým zastoupením renomovaných světových výrobců. Nepouštíme se do neověřených systémů a všechny technologie důkladně testujeme, než je zařadíme do realizace. Díky tomuto přístupu dokážeme dodat skutečně kvalitní a funkční celek, který obstojí v čase.

ZATEPLENÍ - IZOLAČNÍ MATERIÁL THERMOFLOC(R)
Foukaná izolace THERMOFLOC je izolační materiál s certifikací natureplus® a získává se pouze z novinového papíru. Vysokou kvalitu výrobku zároveň potvrzuje evropské schválení. Izolační materiál THERMOFLOC z celulózy disponuje ideálními vlastnostmi pro účinnou tepelnou izolaci, vyrábí se s nízkou energetickou náročností a mimo to nabízí nepřekonatelné výhody při zpracování.
Speciálním postupem foukání za pomocí strojové techniky THERMOBLOW se tepelná izolace bez dořezávání aplikuje do prostoru střechy, podlahy a stěny s nižšími náklady a časovou náročností než u běžných izolačních systémů. Již více než 20 let je THERMOFLOC řešením pro ekologickou, trvale udržitelnou a účinnou tepelnou izolaci s vynikajícími vlastnostmi průchodu vodní páry ideálními pro difuzně otevřené stavby.

OKAPOVÝ SYSTÉM
Na přání Vám dům vybavíme kompletním okapovým systémem a zajistíme také zásobník na dešťovou vodu pro zalévání nebo jiné využití. Používáme vysoce kvalitní systém z hustotního PVC, který je odolný vůči vyblednutí, tlaku, tahu i ohybu. Je navržen tak, aby bez problémů sloužil dlouhá léta a vyžadoval minimální údržbu.
Okapový systém standardně navrhujeme se dvěma samostatnými svody, které lze napojit buď na připravené dešťové kanalizační odpady, nebo na systém sběru dešťové vody pro následné využití – například jako zálivku zahrady nebo technickou vodu ke splachování v domě.
Doporučujeme také prozkoumat aktuální dotační možnosti v rámci programu Dešťovka, který může pomoci výrazně snížit náklady na realizaci.

VÝSTAVBA KOMÍNU
Součástí domu může být různý typ vytápění. Vzhledem k nízké tepelné ztrátě našich domů, která se pohybuje kolem 5 kW, je nutné volit topný systém, který této skutečnosti odpovídá. Nejvhodnějším řešením pro dřevostavbu jsou topné systémy s akumulační vložkou, které zabraňují přehřívání interiéru a umožňují efektivní a rovnoměrné rozložení tepla. Častou součástí výstavby je také realizace komínu – plechového nebo zděného. Při jeho stavbě dbáme na všechny technické detaily, správnou izolaci průchodu stěnou a bezpečné provedení komínového tělesa. Vše provádíme dle platných norem a s ohledem na dlouhodobé bezpečné používání v případě vytápění tuhými palivy.



VYBAVENÍ KOUPELNY a WC
V základní ceně domu není zahrnuta tzv. bílá montáž – tedy instalace vany, umyvadel, WC a sprchového koutu. Není zde ani obklad a dlažba v koupelně. Tyto části si můžete bez problémů zajistit sami, případně Vám rádi pomůžeme s výběrem i dodáním materiálu za zvýhodněné ceny.
Na přání umíme tuto část stavby po dohodě také kompletně zrealizovat.Spolupracujeme se společností PTÁČEK, která má showroomy po celé České republice. Můžete si tam osobně vybrat koupelnové vybavení podle vlastního vkusu a potřeb.
Pokud zvolíte některý z našich základních standardů, cenu si snadno spočítáte v našem nacenění výše. Zvolíte-li u společnosti PTÁČEK jiné vybavení mimo základní nabídku, jednoduše nám pošlete specifikaci Vámi vybraných produktů a my Vám připravíme cenový rozdíl a upravenou nabídku
Zde se můžete podívat na katalog standardů do koupelen: Standardy PTÁČEK

Podlahové krytiny
Součástí dodávky domu jsou dřevěná podlahová prkna, takže běžně není nutné řešit jinou podlahovou krytinu. Pokud se však rozhodnete pro jiný typ podlahy nebo plánujete instalaci podlahového topení, je třeba tomu přizpůsobit i výběr krytiny. Nejvhodnější kombinací s podlahovým topením jsou dlažba, plovoucí podlaha nebo vinyl. Spolupracujeme se společností V-Podlahy, která nabízí výhodné podmínky pro dodávku a montáž podlah po celé České republice. Můžete si vybrat z našich základních standardů přímo u nás, nebo navštívit některý z showroomů V-Podlahy. Pokud zvolíte jiný dekor nebo materiál mimo standardní nabídku, stačí nám sdělit Váš výběr a my Vám dopočítáme cenový rozdíl. Zde si můžete prohlédnout katalog našich podlahových standardů: Standardy podlahových krytin

VYBAVENÍ NÁBYTKEM
Jako zkušení truhláři Vám můžeme nabídnout také výrobu nábytku na míru. Vyrábíme nábytek různých stylů a designů, včetně nábytku zahradního. Při zakoupení domu od nás získáte možnost pořídit tento nábytek za zvýhodněné ceny.
Výhodou naší výroby je nejen kvalita a precizní zpracování, ale především designová sladěnost s Vaším domem – ladíme materiály i barvy přímo v rámci 3D návrhu, takže vše od nábytku po stěny, dveře či podlahy tvoří harmonický celek. Pokud chcete mít naprostý klid a jistotu, svěřte nám celý projekt od základové desky, přes stavební řízení, až po interiér a doplňky jako je sauna, vířivka, garážové stání nebo plot. Vy si pak pouze převezmete klíč od hotového domu, přivezete osobní věci a můžete rovnou bydlet.



MONTÁŽ a PŘÍPRAVNÉ STAVEBNÍ PRÁCE
Montáž domu není zahrnuta v základní ceně, ale rádi Vám ji zajistíme za příplatek podle rozsahu projektu.
Na rozdíl od některých jiných systémů stavíme poctivě přímo na Vašem pozemku – dům si sice částečně předsložíme, ale většina prací probíhá tradičním způsobem až na místě. Žádné skládání jako z lega – ale skutečná stavba poctivým řemeslem.
Délka montáže závisí na velikosti a složitosti domu – obvykle se pohybuje mezi 10 až 30 dny. Výhody našeho stavebního systému: Není potřeba těžká technika ani jeřáby, stavíme i na těžko přístupných nebo svažitých pozemcích, maximální flexibilita podle konkrétního terénu a přání zákazníka.
Zajišťujeme také doplňkové stavební práce: příprava a pokládka základové desky, výstavba příjezdových cest, oplocení, garáží, kompletní elektroinstalace, vodoinstalace a odpady, topenářské práce (voda, vzduch, elektřina).
Chcete se na něco zeptat nebo s námi nezávazně probrat možnosti? Ozvěte se – rádi Vám vše vysvětlíme a navrhneme ideální řešení právě pro Váš pozemek a Vaše plány. fila@na-statku.cz nebo 608 77 111 7.



DOPLŇKOVÁ VÝROBA, SAUNY, VÍŘIVKY, PERGOLY, GARÁŽOVÉ STÁNÍ
Jsme také přímými výrobci veškerého doplňkového vybavení k domu i na zahradu z masivního dřeva. Vyrábíme terasy, pergoly, květináče, vyvýšené záhony, parkovací přístřešky, ploty, sauny, vířivky a mnoho dalšího. Vše ve vysoké kvalitě, z poctivého dřeva a s ohledem na dlouhou životnost.
Při současné objednávce těchto doplňků spolu s výstavbou domu pro Vás navrhneme optimální způsob propojení s domem a domluvíme ideální termín realizace – buď s časovým odstupem, nebo ihned po dokončení stavby. Kombinací našich výrobků navíc získáte výhodu jednotného servisu i v budoucnu.
Veškeré záruční či doplňkové služby budete řešit s jediným, prověřeným dodavatelem. Neváhejte nás oslovit pro individuální nabídku i na tyto produkty – rádi Vám připravíme zvýhodněné podmínky.
















