Zahradní doplňky
Zahradní stavby
Dřevostavby
Sauny a vířivky
Prodejny
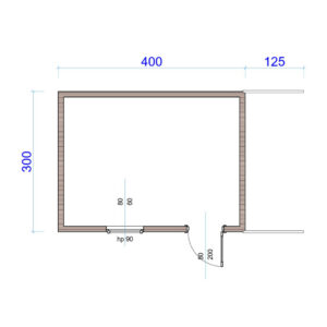
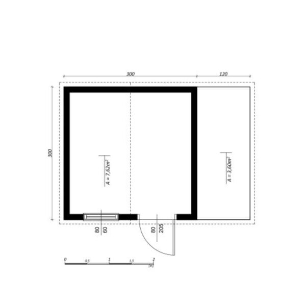
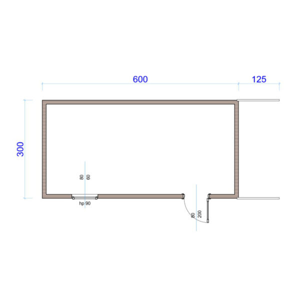
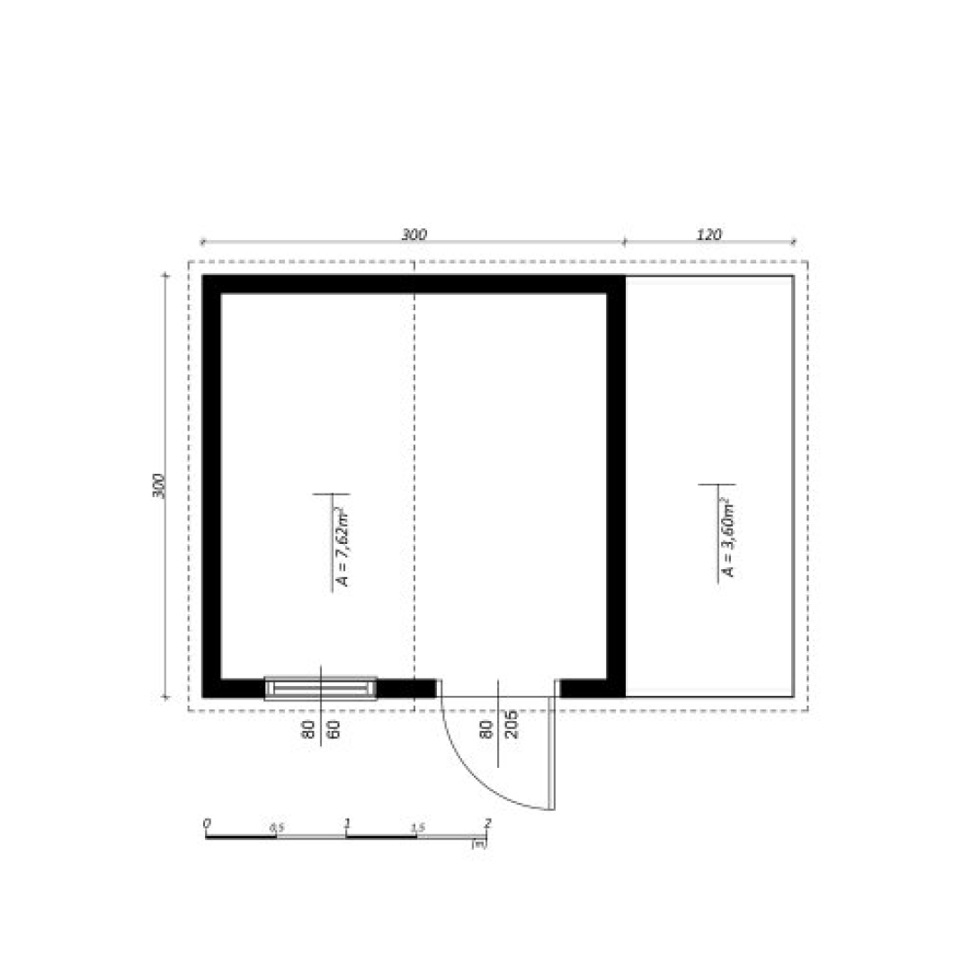
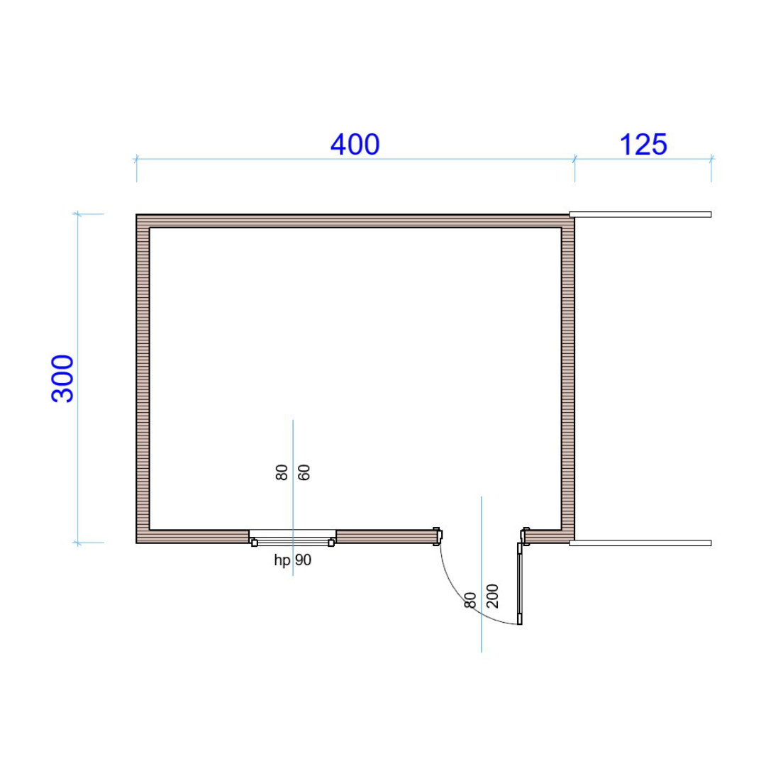
Dřevěný dům HABR je dům s celkovou zastavěnou plochou od 12m2 a vyrábíme ho v dalších 4 velikostech. Jedná se o dřevostavbu, která je vhodná jako chata, prázdninový dům nebo pro celoroční použití. Dům dodáváme v základním rozměru 4x3m, podlahová plocha 12m2. Cenu máme díky předpřipraveným dílcům nastavenou doopravdy akčně.
Z našich realizací víme, co takový dům musí mít, jak má být správně vyroben a rádi se o naše získané zkušenosti s vámi podělíme. Dům jsme zkrátka pro vás vyladili do posledního detailu.
Uvedená cena je za základní provedení. Příplatkově nabízíme zateplení, elektro instalaci, topení, vystavění komínu, stavbu základové desky, různé typy střešních krytin a vůbec celou realizaci na klíč. Myslíme na vaše pohodlí a tak si můžete u nás také pořídit nábytek a 3D vizualizaci celého projektu. Pro více informací nás kontaktujte a my vám spočteme vše potřebné na míru a navrhneme pro vás ideální řešení. Telefonní kontakt je +420 608 771 117 , či email: fila@na-statku.cz. Rádi s vámi probereme všechny detaily, možnosti a nezávazně Vám spočteme celou stavbu. Můžeme vám zajistit také stavební přípravné práce a položení základové desky.
Naše stavba je difuzně otevřená, což znamená, že umožňuje přirozené „dýchání“ – vodní pára může volně procházet konstrukcí směrem ven. Díky tomu je v domě zdravé klima bez zadržované vlhkosti a rizika plísní. Je to přirozený a ekologický způsob stavění s důrazem na pohodlí a dlouhou životnost.
Součástí ceny je také 3D projekt ZDARMA. V rámci ceny nabízíme možnost jakýchkoli změn v obložení, umístění dveří a poměru Thermowood/plech na klik dle Vašeho návrhu. V ceně jsou rovněž úpravy vnitřního uspořádání podle Vašich požadavků.
Založení stavby je klíčovou součástí výstavby domu. U menších domů do 25 m² je možné použít jako základ štěrkové lože. U staveb větších než 25 m² je však vhodnější založit stavbu na lehké betonové základové desce.
Pro představu se můžete podívat na ukázku 3D návrhu, půdorysného řešení a technické dokumentace:
• Technická dokumentace VRBA | Stolárna na statku s.r.o.
• 3D vizualizace VRBA | Stolárna na statku s.r.o.
Doba dodání u všech typů domků je 2 měsíce od schválení finálního projektu.

| Hmotnost | 50 kg |
|---|
