Popis
Nízkoenergetické domy
Průchod domem
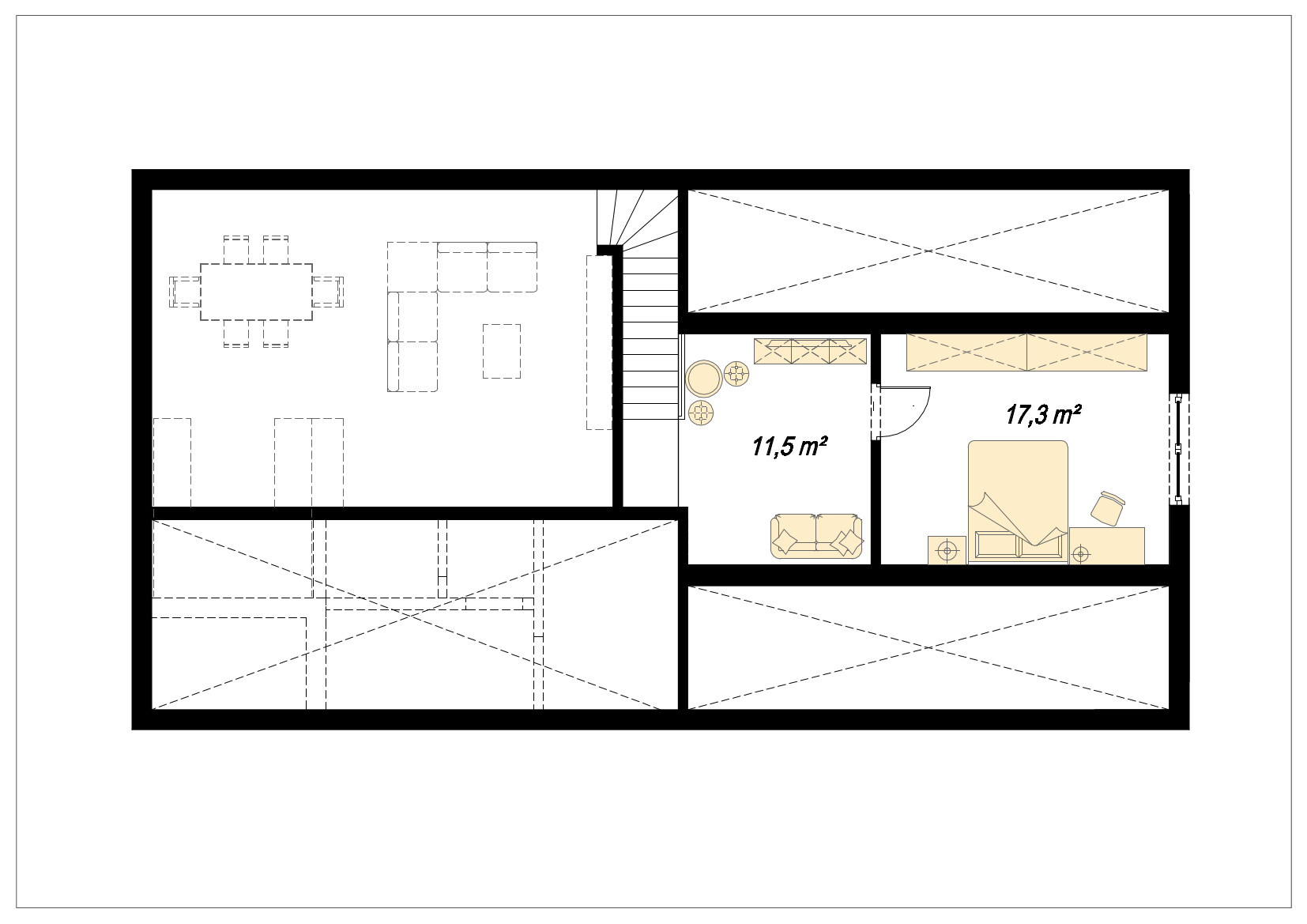
VNITŘNÍ DISPOZICE - B
Vnitřní dispozice, rozdělení a velikosti nebo počet vnitřních prostor je možné upravit na přání a vytvořit tak například nové místnosti. Čas dodání se pohybuje okolo 6-8 týdnů od podpisu smlouvy.


SCHÉMA KONSTRUKCE
Více o konstrukci nízkoenergetických domů si můžete přečíst zde Konstrukce nízkoenergetických domů | Stolárna na statku s.r.o.

Průběh zakázky
Prvním krokem v celém procesu je výběr typu domu a jeho vnější dispozice. Na základě této volby a plánovaného vybavení si můžete svůj dům nacenit do posledního detailu přímo na našich stránkách, kde je celý postup srozumitelně vysvětlen. Pokud dáváte přednost osobnímu přístupu, můžete nám jednoduše předat základní informace a my Vám připravíme nacenění sami. Pro přesnější kalkulaci je vhodné dodat i jednoduchý plánek vnitřního rozvržení, kde budou vyznačeny například dveře a okna. Pokud se na této cenové nabídce shodneme a rozhodnete se svěřit realizaci domu nám, podepisujeme buď variantu A – smlouvu o projektové dokumentaci, nebo variantu B – zálohu na stavbu domu ve výši 40 % z celkové ceny. Varianta B je rychlejší, protože nám umožní okamžitě nakoupit materiál, rezervovat kapacitu výroby a zkrátit tak celkovou dobu výstavby až o 30–60 dní. Pokud zvolíte variantu A, uhradíte plnou cenu projektu ve výši 150 000 Kč. V případě následné realizace zakázky Vám tuto částku odečteme a získáte zvýhodněnou cenu za kompletní projekt (ALL.IN) – v závislosti na typu domu může být snížena na 20–70 000 Kč.
Po uhrazení jakékoli z těchto plateb následuje vytvoření 3D návrhu Vašeho domu. S ohledem na Vaše připomínky tento proces obvykle trvá 7–14 dní, přičemž naše reakce na každou úpravu zasíláme standardně do 24–48 hodin. Po finálním odsouhlasení 3D návrhu připravíme projekty elektroinstalace, vody, osvětlení a odpadu ve standardní kvalitě a zašleme Vám je ke kontrole. Jakmile vše potvrdíte, zahajujeme proces stavebního řízení, jehož konkrétní průběh závisí na typu stavby (odkaz doplníme).Po získání stavebního povolení nebo předběžného souhlasu a uhrazení další zálohy ve výši 33 % se pouštíme do výroby Vašeho domu. Ta obvykle trvá přibližně 30 dnů. Pokud jsou současně připraveny i všechny podmínky na pozemku – základová deska, napojení na sítě, průzkumy a souhlasy – zahajujeme samotnou stavbu dle domluveného harmonogramu. Výstavba na místě trvá běžně 20–30 dní, dle rozsahu doplňkových služeb (topení, podlahové krytiny, nábytek apod.) se může prodloužit o dalších 15–30 dní.
Další platba ve výši 15 % z ceny domu probíhá ve fázi dokončování hrubé stavby. Zbytek ceny je splatný po kolaudaci nebo při předání domu.

Stavební povolení a ohlášení stavby
Ke každému našemu domu nabízíme možnost kompletního zajištění stavebního povolení nebo ohlášení stavby. Pokud si přejete řešit stavební řízení sami, dodáme Vám pouze kompletní projektovou dokumentaci v potřebném rozsahu. Na začátku je důležité si ujasnit, o jaký typ stavby se jedná – zda jde o rodinný dům určený k celoročnímu bydlení, rekreační objekt nebo například drobnou stavbu navazující na stávající objekt. Podle této volby se pak liší konkrétní postup vůči stavebnímu úřadu.
Proces získání stavebního povolení zpravidla trvá 30 až 90 dnů, ale vzhledem ke složitosti stavebního práva a rozdílné praxi jednotlivých úřadů je třeba počítat i s možnými zdrženími. Ze zkušenosti víme, že vstřícný a osobní přístup k pracovníkům stavebního úřadu může celý proces výrazně urychlit.
Podrobný popis jednotlivých kroků, požadavků na investora a celý průběh stavebního řízení najdete v tomto odkazu: Stavební povolení | Stolárna na statku s.r.o.

SPOLUPRÁCE, DODAVATELÉ a LOGIKA VÝSTAVBY
Stavíme domy – to je naše hlavní specializace a obor, ve kterém se neustále zdokonalujeme. Sledujeme nejnovější trendy, účastníme se školení a vylepšujeme každý detail, abychom Vám mohli nabídnout kvalitní, moderní a spolehlivé řešení. Naší ambicí je dodávat domy na klíč a zbavit Vás zbytečných starostí s dalšími stavebními profesemi. Proto spolupracujeme výhradně s ověřenými specialisty a firmami, které patří ke špičce v oboru.
Na izolace a parobrzdné fólie využíváme systém Thermofloc®, podlahové vytápění s doživotní zárukou zajišťuje Saint-Gobain, klimatizace instalujeme převážně značek LG a Samsung, koupelny dodává PTÁČEK a podlahové krytiny řešíme s firmou V-Podlahy. Používáme ověřené materiály značek RIGIPS a ISOVER a spolupracujeme výhradně s českými firmami nebo českým zastoupením renomovaných světových výrobců. Nepouštíme se do neověřených systémů a všechny technologie důkladně testujeme, než je zařadíme do realizace. Díky tomuto přístupu dokážeme dodat skutečně kvalitní a funkční celek, který obstojí v čase.

INSTALACE a BARVY PLECHOVÉ KRYTINY
Na naše domy používáme různé typy plechových stěn a střech, přičemž mezi nejoblíbenější patří moderní plechová krytina na klik a plechová imitace tašky. Vždy dodržujeme správné montážní postupy a plechy instalujeme na stěny tvořené 10cm dřevěným roštem. Tím vytváříme odvětrávané fasády a střechy, které zajišťují dlouhou životnost a zároveň výrazně zlepšují difuzní i izolační vlastnosti domu. V létě navíc pomáhají odvádět přebytečné teplo z povrchu fasády, což zlepšuje celkový tepelný komfort v interiéru. Za příplatek je možné doplnit konstrukci o systémy pro snížení hlučnosti a zvýšení tvarové stálosti, stejně jako o ochranné mřížky proti pronikání drobných živočichů v horní i spodní části fasády.

OKAPOVÝ SYSTÉM
Na přání Vám dům vybavíme kompletním okapovým systémem a zajistíme také zásobník na dešťovou vodu pro zalévání nebo jiné využití. Používáme vysoce kvalitní systém z hustotního PVC, který je odolný vůči vyblednutí, tlaku, tahu i ohybu. Je navržen tak, aby bez problémů sloužil dlouhá léta a vyžadoval minimální údržbu.
Okapový systém standardně navrhujeme se dvěma samostatnými svody, které lze napojit buď na připravené dešťové kanalizační odpady, nebo na systém sběru dešťové vody pro následné využití – například jako zálivku zahrady nebo technickou vodu ke splachování v domě.
Doporučujeme také prozkoumat aktuální dotační možnosti v rámci programu Dešťovka, který může pomoci výrazně snížit náklady na realizaci.

VÝSTAVBA KOMÍNU
Součástí domu může být různý typ vytápění. Vzhledem k nízké tepelné ztrátě našich domů, která se pohybuje kolem 5 kW, je nutné volit topný systém, který této skutečnosti odpovídá. Nejvhodnějším řešením pro dřevostavbu jsou topné systémy s akumulační vložkou, které zabraňují přehřívání interiéru a umožňují efektivní a rovnoměrné rozložení tepla. Častou součástí výstavby je také realizace komínu – plechového nebo zděného. Při jeho stavbě dbáme na všechny technické detaily, správnou izolaci průchodu stěnou a bezpečné provedení komínového tělesa. Vše provádíme dle platných norem a s ohledem na dlouhodobé bezpečné používání v případě vytápění tuhými palivy.



VYBAVENÍ KOUPELNY, WC a KUCHYNĚ
V základní ceně domu není zahrnuta tzv. bílá montáž – tedy instalace vany, umyvadel, WC a sprchového koutu. Není zde ani obklad a dlažba v koupelně. Stejně tak není v ceně zahrnuta kuchyňská linka ani vestavěné spotřebiče. Tyto části si můžete bez problémů zajistit sami, případně Vám rádi pomůžeme s výběrem i dodáním materiálu za zvýhodněné ceny.
Na přání umíme tuto část stavby po dohodě také kompletně zrealizovat. Spolupracujeme se společnostmi PTÁČEK a SIKO, které mají showroomy po celé České republice. Můžete si tam osobně vybrat koupelnové či kuchyňské vybavení podle vlastního vkusu a potřeb.
Pokud zvolíte některý z našich základních standardů, cenu si snadno spočítáte v našem nacenění výše. Zvolíte-li jiné vybavení mimo základní nabídku u společnosti PTÁČEK nebo SIKO, jednoduše nám pošlete specifikaci Vámi vybraných produktů a my Vám připravíme cenový rozdíl a upravenou nabídku.
Zde se můžete podívat na katalogy standardů: Standardy PTÁČEK a Standardy SIKO

Podlahové krytiny
Součástí dodávky domu jsou dřevěná podlahová prkna, takže běžně není nutné řešit jinou podlahovou krytinu. Pokud se však rozhodnete pro jiný typ podlahy nebo plánujete instalaci podlahového topení, je třeba tomu přizpůsobit i výběr krytiny. Nejvhodnější kombinací s podlahovým topením jsou dlažba, plovoucí podlaha nebo vinyl. Spolupracujeme se společností V-Podlahy, která nabízí výhodné podmínky pro dodávku a montáž podlah po celé České republice. Můžete si vybrat z našich základních standardů přímo u nás, nebo navštívit některý z showroomů V-Podlahy. Pokud zvolíte jiný dekor nebo materiál mimo standardní nabídku, stačí nám sdělit Váš výběr a my Vám dopočítáme cenový rozdíl. Zde si můžete prohlédnout katalog našich podlahových standardů: Standardy podlahových krytin

VYBAVENÍ NÁBYTKEM
Jako zkušení truhláři Vám můžeme nabídnout také výrobu nábytku na míru. Vyrábíme nábytek různých stylů a designů, včetně nábytku zahradního. Při zakoupení domu od nás získáte možnost pořídit tento nábytek za zvýhodněné ceny.
Výhodou naší výroby je nejen kvalita a precizní zpracování, ale především designová sladěnost s Vaším domem – ladíme materiály i barvy přímo v rámci 3D návrhu, takže vše od nábytku po stěny, dveře či podlahy tvoří harmonický celek. Pokud chcete mít naprostý klid a jistotu, svěřte nám celý projekt od základové desky, přes stavební řízení, až po interiér a doplňky jako je sauna, vířivka, garážové stání nebo plot. Vy si pak pouze převezmete klíč od hotového domu, přivezete osobní věci a můžete rovnou bydlet.



MONTÁŽ a PŘÍPRAVNÉ STAVEBNÍ PRÁCE
Montáž domu je zahrnuta v ceně. Využijte možnost záruky na celou stavbu v případě objednání s montáží.
Na rozdíl od některých jiných systémů stavíme poctivě přímo na Vašem pozemku – dům si sice částečně předsložíme, ale většina prací probíhá tradičním způsobem až na místě. Žádné skládání jako z lega – ale skutečná stavba poctivým řemeslem.
Délka montáže závisí na velikosti a složitosti domu – obvykle se pohybuje mezi 10 až 30 dny. Výhody našeho stavebního systému: Není potřeba těžká technika ani jeřáby, stavíme i na těžko přístupných nebo svažitých pozemcích, maximální flexibilita podle konkrétního terénu a přání zákazníka.
Zajišťujeme také doplňkové stavební práce: příprava a pokládka základové desky, výstavba příjezdových cest, oplocení, garáží, kompletní elektroinstalace, vodoinstalace a odpady, topenářské práce (voda, vzduch, elektřina).
Chcete se na něco zeptat nebo s námi nezávazně probrat možnosti? Ozvěte se – rádi Vám vše vysvětlíme a navrhneme ideální řešení právě pro Váš pozemek a Vaše plány. fila@na-statku.cz nebo 608 771 117 .



DOPLŇKOVÁ VÝROBA, SAUNY, VÍŘIVKY, PERGOLY, GARÁŽOVÉ STÁNÍ
Jsme také přímými výrobci veškerého doplňkového vybavení k domu i na zahradu z masivního dřeva. Vyrábíme terasy, pergoly, květináče, vyvýšené záhony, parkovací přístřešky, ploty, sauny, vířivky a mnoho dalšího. Vše ve vysoké kvalitě, z poctivého dřeva a s ohledem na dlouhou životnost.
Při současné objednávce těchto doplňků spolu s výstavbou domu pro Vás navrhneme optimální způsob propojení s domem a domluvíme ideální termín realizace – buď s časovým odstupem, nebo ihned po dokončení stavby. Kombinací našich výrobků navíc získáte výhodu jednotného servisu i v budoucnu.
Veškeré záruční či doplňkové služby budete řešit s jediným, prověřeným dodavatelem. Neváhejte nás oslovit pro individuální nabídku i na tyto produkty – rádi Vám připravíme zvýhodněné podmínky.















